FB

FB

Logo Wuma Archtektura
Logo WUMA ARCHITEKTURA Internat
Internat w Zduńskiej Dąbrowie realizacja
Internat w Zduńskiej Dąbrowie przekrój przez nowy i stary budynek

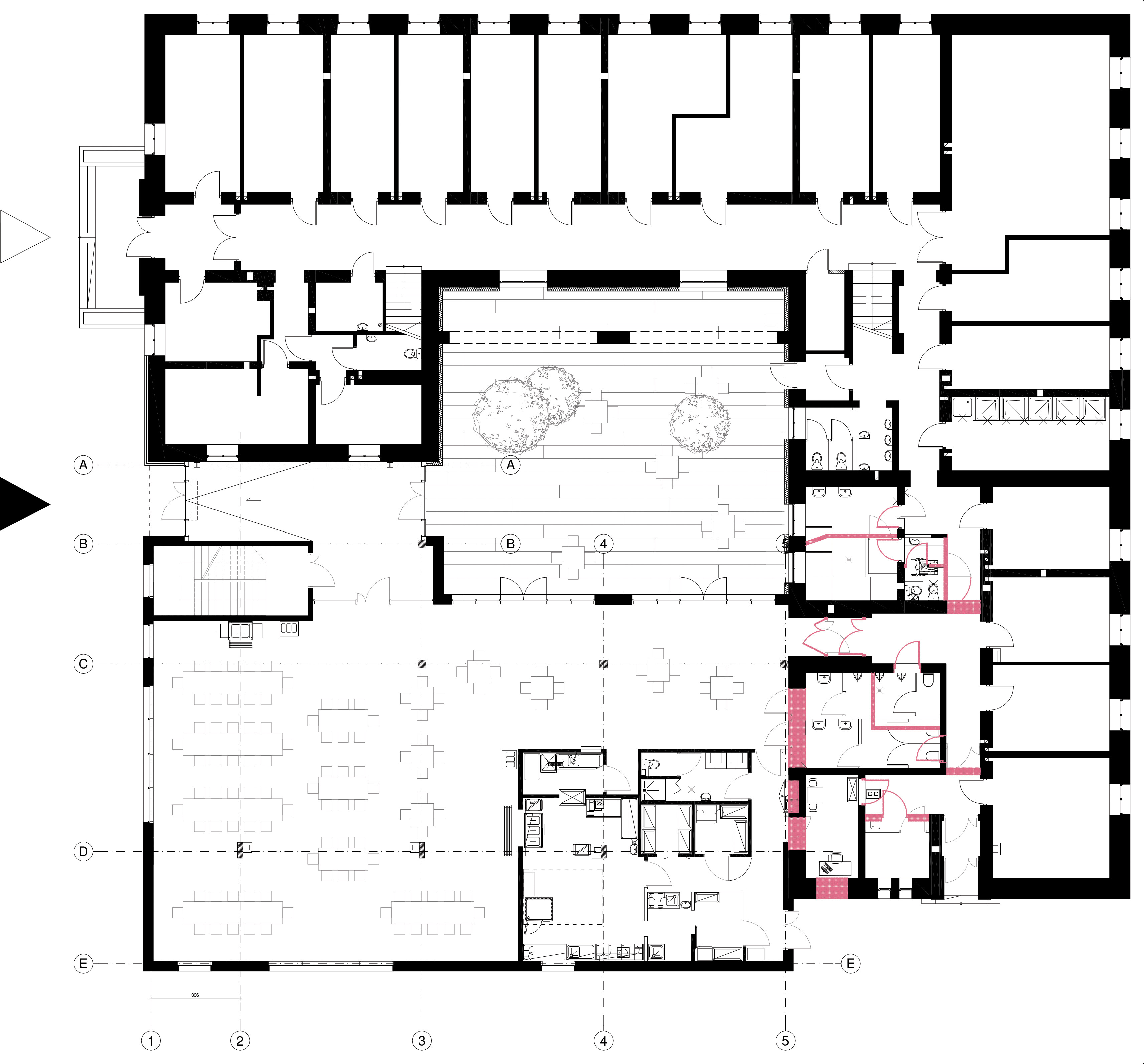
PIĘTRO

PODDASZE

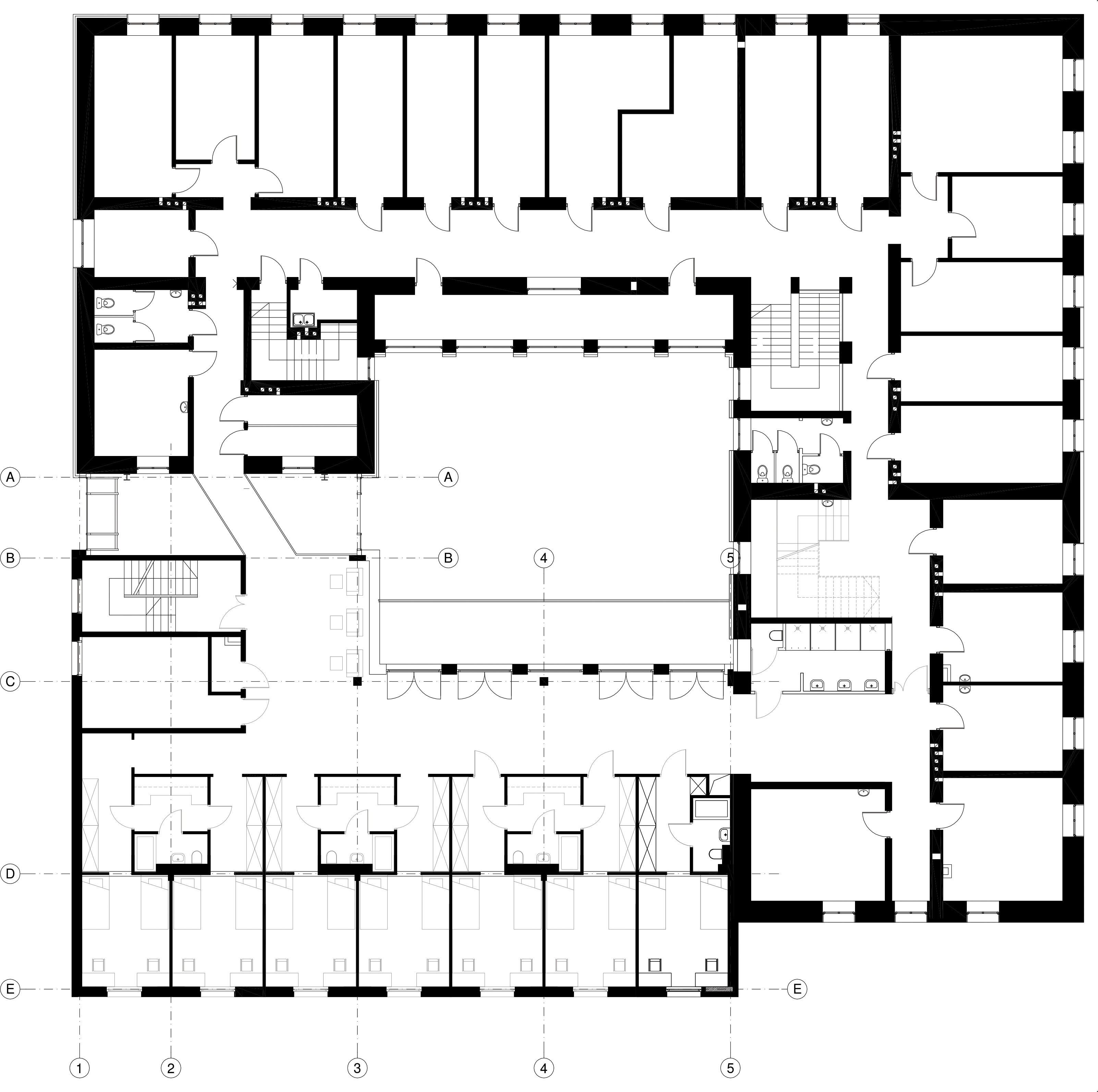
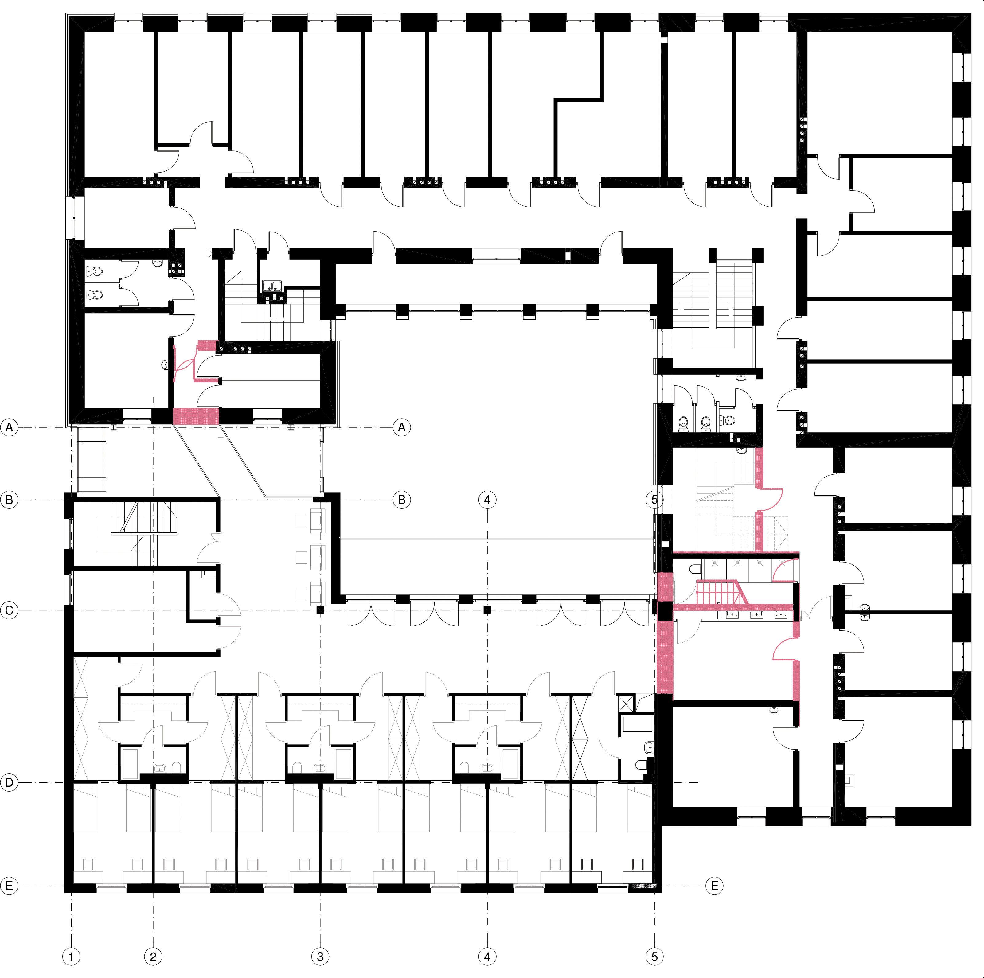
PARTER

Budynek internatu znajduje się w kompleksie Zespołu Szkół Centrum Kształcenia Rolniczego im. Jadwigi Dziubińskiej w Zduńskiej Dąbrowie pod Łowiczem. Obiekt został wzniesiony w latach 20-tych XX wieku jako niepodpiwniczony, dwukondygnacyjny budynek z nieużytkowym poddaszem. Od samego początku  do dziś spełnia swoją rolę jako obiekt, który przyjmuje uczniów niemających dogodnych codziennych połączeń komunikacyjnych  z rodzinnymi miejscowościami. Rozbudowa i przebudowa obiektu  od wielu lat była bardzo potrzebna z uwagi na przestarzałe standardy wnętrza oraz stale rosnącą liczbę chętnych do zamieszkania.

 

Z inicjatywy władz szkoły powstał projekt dla dodatkowych trzydziestu uczniów gdzie najlepszym miejscem na realizację inwestycji był otwarty dziedziniec od strony północno-zachodniej. W konsekwencji pozwoliło to na zamknięcie bryły oraz uzyskanie wewnętrznego dziedzińca. Skala i forma nowej części jest tak zaprojektowana, aby współgrała z istniejącą. Powtórzenie górnej linii elewacji oraz kształtu dachu nadaje jednolitą formę bursie i dzięki temu tworzy wspólną całość. Szklany łącznik, w którym jest główne wejście posiada dwie funkcje tj. połączenie „starego z nowym” oraz odwrotne czyli oddzielenie dwóch form architektonicznych.

 

Poziom parteru zajmuje głównie stołówka wraz z całym zapleczem kuchennym i dodatkowymi pomieszczeniami administracyjnymi. Uczniowie mają do dyspozycji dziedziniec na którym w okresie letnim mogą wykorzystywać na odpoczynek bądź naukę. Na poziomie piętra znajdują się pokoje dla uczniów oraz pomieszczenie do cichej nauki. Szeroki korytarz na którym zaproponowano miejsca do siedzenia ma pomagać w lepszej integracji. Do dyspozycji jest taras, który ma spełniać podobną funkcję jak dziedziniec. Z uwagi na wysokie poddasze jakie budynek posiada wykorzystano ten aspekt w nowej części i zaprojektowano trzecią kondygnację. Tym samym zwiększono liczbę pokoi i dodano pomieszczenia socjalne oraz kolejne pomieszczenie do cichej nauki. Dodatkowo w narożnej części istniejącego budynku  powtórzono ten zabieg i uzyskano trzy pokoje wraz z klatką schodową.

 

Aby połączyć komunikacyjnie obie części przeprowadzono prace wyburzeniowe wewnątrz budynku oraz w ścianach zewnętrznych w miejscach planowanych przejść. Dodano nową klatkę schodową w części istniejącej z poziomu piętra na poddasze. W przestrzeni szklanego łącznika zaprojektowano stalową ażurową kładkę dzięki, której komunikacja na tym poziomie zyskała pełne połączenie, a jej lekka forma ma za zadanie nie wpływać negatywnie na odbiór wnętrza.

 

Realizacja spełnia główne wymagania takie jak powiększenie liczby pokoi, stworzenie nowej przestrzeni rekreacyjnej, dodanie stołówki wraz zapleczem oraz co najważniejsze zintegrowanie istniejącego budynku z nowym skrzydłem.

 

 

W U M A ARCHITEKTURA

 

Internat w Zduńskiej Dąbrowie wnętrze budynku
Internat w Zduńskiej Dąbrowie realizacja
Internat w Zduńskiej Dąbrowie W trakacie budowy
Internat  Zdjęcie budynku. internat przed rozbudową. Projekt rozbudowy
Internat w Zduńskiej Dąbrowie realizacja

Internat w Zduńskiej Dąbrowie

 

\projekt

2015-2016

 

\realizacja

2017-2022

 

\inwestor

Zespół Szkół Centrum Kształcenia Rolniczego im. Jadwigi Dziubińskiej w Zduńskiej Dąbrowie

 

\współpraca

Luiza Anyszka

Andrzej Szklarski

 

\powierzchnia

850m2